HOME
SERVICES
PROJECTS
ABOUT US
CONTACT
HOME
SERVICES
PROJECTS
ABOUT US
CONTACT
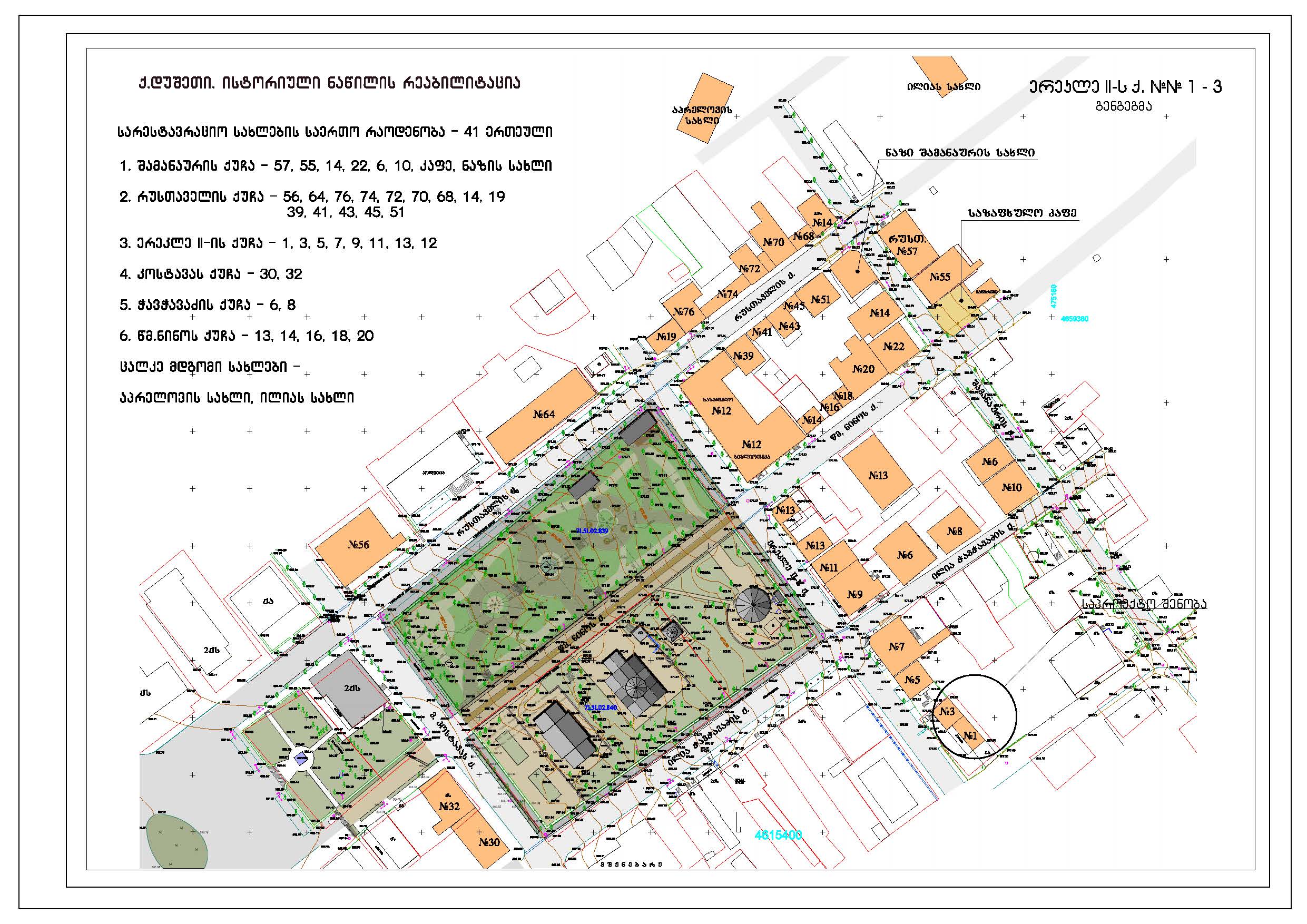
Dusheti City. Dusheti Region.Georgia. Rehabilitation of historical part